Mục Lục
BẢN VẼ BIỂN QUẢNG CÁO 8M X 5M – ĐẦY ĐỦ DỰ TOÁN & THUYẾT MINH
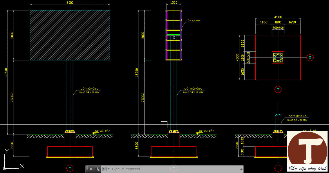
1. Đặc điểm Công trình và Kích thước
-
Loại công trình: Biển quảng cáo ngoài trời cỡ lớn (Pano quảng cáo).
-
Kích thước mặt pano: Chiều rộng 8m Chiều cao 5m (Tổng diện tích 40m^2).
-
Cấu trúc: Biển được thiết kế trên 1 trụ (cột).
-
Hình thức bố trí: Thiết kế dạng tam giác (thường là biển 3 mặt hoặc 2 mặt chữ V/tam giác) để tăng hiệu ứng quang học và tầm nhìn.
-
Ứng dụng: Áp dụng cho các tuyến đường quốc lộ và cao tốc.
2. Vật liệu và Nội dung Hồ sơ Kỹ thuật
-
Vật liệu kết cấu: Chủ yếu là Thép (Steel Structure) cho phần khung giàn và cột.
-
Định dạng file: Bộ hồ sơ đầy đủ bao gồm Bản vẽ (.dwg – Autocad), Thuyết minh (.doc – Word), và Dự toán (.xls – Excel).
-
Nội dung chính:
-
Bản vẽ: Chi tiết kết cấu khung thép của biển, chi tiết móng, trụ cột, và các liên kết giàn thép.
-
Thuyết minh: Thuyết minh chi tiết tính toán kết cấu (kiểm tra khả năng chịu tải trọng gió, tải trọng bản thân) theo tiêu chuẩn thiết kế.
-
Dự toán: Bảng tính dự toán công trình chi tiết, giúp xác định chi phí vật tư và thi công.
-
3. Mục đích
-
Là tài liệu thiết kế và quản lý chi phí hoàn chỉnh, rất thích hợp cho các công ty quảng cáo, kỹ sư xây dựng tham khảo, lập hồ sơ thầu, hoặc làm đồ án tốt nghiệp liên quan đến kết cấu thép chịu gió.
Một số hình ảnh file


Mình không thể up hết các ảnh chi tiết công trình, các bạn tải về xem chi tiết nhé.
File rất thích hợp cho các bạn tham khảo thiết kế công trình tương tự
Các bản vẽ, bản tính khác các bạn tham khảo tại đây
Nếu bản vẽ này chưa ưng ý các bạn có thể tham khảo thêm kinh nghiệm thiết kế công trình tương tự trong hệ thống file.
Giới thiệu Thuviencongtrinh
Thuviencongtrinh.com đã tổng hợp được rất nhiều file hay, bản vẽ đẹp, đồ án chất lượng của những dự án thực tế. Các tài liệu này được thực hiện từ các dự án thiết kế đã được duyệt, đồ án mẫu, khóa học online hay. Hy vọng những file này sẽ giúp ích được cho các bạn.
Thuviencongtrinh.com hoạt động vì cộng đồng. Ở đây bạn có thể tự do upload chia sẻ tài liệu của mình cho những ai quan tâm để cùng nhau học hỏi, đúc kết kinh nghiệm. Chúng tôi luôn muốn có bạn đồng hành cùng sự phát triển của cộng đồng.
Đặc biệt khi tham gia web bạn còn có cơ hội kiếm tiền cực lớn cho mình. Khi đăng bán tài liệu của bản thân hay các file sưu tầm chất lượng.
Thuviencongtrinh.com hy vọng các bạn cùng chung tay xây dựng và đóng góp cho cộng đồng.
Chúc bạn có thêm thật nhiều kiến thức và tạo ra được lợi nhuận cho mình khi tham gia cùng Thuviencongtrinh.com




Hoàng Văn Quân –
File đúng mô tả, shop tu vấn nhiệt tình